Fit Casa Estação Mooca - EZTEC

Endereço: Av. Presidente Wilson, 620 – Mooca
Estação mais próxima: 160 metros – Mooca
Status: Pronto

Lazer e Áreas Comuns

Academia
Bicicletário
Brinquedoteca
Churrasqueira
Coworking
Espaço Camarote
Espaço Piquenique
Lavanderia
Piscina Adulto com Deck Molhado
Piscina Infantil
Playground
Portaria Blindada
Quadra Recreativa
Sala de Games
Salão de Festas
Solário

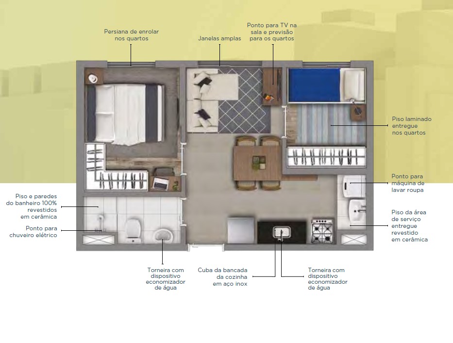
Plantas

Localização

Mais informações? Preencha seus dados que entrarei em contato!

Com o DDD

Ou se preferir, me chame no WhatsApp!

Basta Clicar no Link Acima!

Rolar para o topo